For Sale

70 Heytesbury Lane,
Dublin 4

Size: 125 m²
Price/Rent: 1.5 Million

Description

Ballsbridge is one of Dublin’s most desirable residential neighbourhoods, and this property is located in the heart of the area, parallel to Waterloo Road and the Merrion Road. The area is renowned for its blend of prestigious amenities, mature streetscapes, and excellent connectivity. The southern side of the area is particularly notable for its concentration of embassies and diplomatic residences, especially along Ailesbury Road and the surrounding avenues. The area is home to several key national institutions, including the RDS grounds, which sit at its heart, and the IRFU’s Aviva Stadium on Lansdowne Road, located along the boundary between Ballsbridge and Irishtown.

Corporate presence is also strong, with the headquarters of Allied Irish Banks (AIB) situated within the suburb. Geographically, Ballsbridge extends north toward the Grand Canal, south into Donnybrook, and west to encompass the soughtafter districts around Pembroke Road, Clyde Road, Elgin Road, and Herbert Park, offering an exceptional blend of residential prestige, green space, and urban convenience. Discreetly positioned behind a remote-controlled roller shutter entrance, this charming mews residence (approx. 125 sq m) offers exceptional privacy within a peaceful, secluded setting.

A beautifully landscaped front garden enjoys morning sunshine and incorporates offstreet parking, with direct access to the kitchen at the front of the home, creating a welcoming and highly functional arrival. An additional pedestrian gate provides convenient secondary access. The property occupies a generous gross site area of approximately 212 sq m and benefits from gasfired central heating. A gently sloped ramp leads to the front door, opening into a wide and bright entrance hallway with a guest WC located to the left. From here, there is a clear visual connection straight through to the rear garden, where two well positioned storage sheds frame the space and enhance the sense of depth.

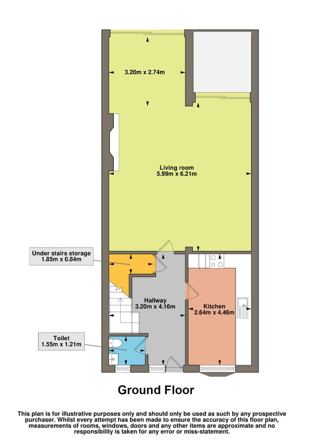
The thoughtful layout and carefully designed landscaping combine to create an attractive and well balanced front to back aspect. The hallway opens into an impressive fullwidth living and dining room with its original fireplace and finished overall to a high standard. Generous proportions, quality carpeting, and a thoughtful layout create a comfortable yet refined living space, while an extended section to one side provides a cosy nook ideal for a reading corner or additional seating area. The rear garden is south west facing and enclosed by attractive stone walls, offering both privacy and excellent afternoon and evening light. Designed for low maintenance living, the space is neatly landscaped with pebbled finishes and clean lines.

Two storage sheds, each supplied with external electricity and water, add valuable functionality while contributing to the garden’s symmetry and structure. Upstairs, a carpeted landing leads to a well finished family bathroom. The principal bedroom is located to the rear of the property and benefits from an ensuite fitted with a quality shower and fittings consistent with the home’s overall standard. Overlooking the garden, this is a comfortable and well proportioned room. Two further bedrooms are positioned to the front of the house and enjoy an easterly aspect. All bedrooms are sensibly laid out and reflect the home’s excellent upkeep and presentation throughout. Overall, this is a thoughtfully designed and exceptionally well maintained property offering privacy, comfort, and a highly practical layout in a sought after location. BER: To be confirmed, awaiting results.

 

Specification

Bedrooms: 3
Bathrooms: 3
Total Floors: 2
Parking: Parking
Additional space: The rear garden is west‑facing and enclosed by attractive stone walls